iQ Makelaars Feedbackcompany
9.5 10
252 reviews
iQ Makelaars Funda
9.1 10
 
Schildwolde, Taco Haringastraat 18
 

Taco Haringastraat 18 Schildwolde

€ 450.000,-
k.k.
€ 450.000,-
k.k.
Taco Haringastraat 18 Schildwolde
  • TypeEengezinswoning
  • Woonoppervlakte143 m²
  • Perceelgrootte416 m²
  • Slaapkamers4
  • GarageJa
  • Aangeboden sinds19-11-2025
  • Beschikbaarheid In overleg
Vraag bezichtiging aan

Omschrijving

RUIME HALF VRIJSTAANDE WONING MET LAGE WOONLASTEN EN INSTAPKLAAR

In het gezellige Schildwolde staat deze ruime half vrijstaande woning uit 2005 met energielabel A, 12 zonnepanelen, zonneboiler (warm water). De woning is instapklaar, keurig onderhouden, vrijwel gasloos en biedt een uitstekende combinatie van comfort, ruimte en duurzaamheid.

De woning ligt aan een groene en rustige straat met eigen oprit en een zonnige, omheinde tuin op het zuidwesten. De moderne keuken, de unieke geïsoleerde serre met glazen dak, en de sauna met buitendouche maken dit huis tot een heerlijk thuis waar binnen- en buitenleven samenkomen.

INDELING

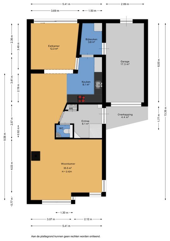
Begane grond
Entree met meterkast en toilet. Ruime, lichte woonkamer met massief eiken vloer en een Jacobus-houtkachel voor extra sfeer. De halfopen keuken is voorzien van een grote inductiekookplaat, vaatwasser, koelkast, vriezer en combi-oven. Aansluitend vind je de volledig geïsoleerde serre (2019) met schuifpui, glazen dak en zonwering, een heerlijke plek om het hele jaar door te genieten van licht en uitzicht op de tuin. Vanuit de bijkeuken (met wasmachineaansluiting) is de volledig geïsoleerde garage (2024) bereikbaar, voorzien van een geïsoleerde deur (2022) en krachtstroom.

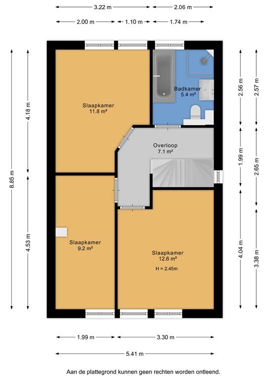
Eerste verdieping
Overloop, drie slaapkamers en een moderne badkamer met (bubbel)ligbad, aparte douche en tweede toilet.

Zolder
Via vaste trap bereikbaar. Deze verdieping is momenteel ingericht als één royale slaapkamer, maar biedt voldoende ruimte om twee kamers te realiseren.
De garage is eenvoudig om te bouwen tot een slaapkamer met badkamer, wat het huis levensloopbestendig maakt

BUITEN
De grote zonnige tuin ligt op het zuidwesten en is fraai aangelegd met een overkapping, houtopslag, fietsenstalling, speeltoestel en een sauna met buitendouche (2018). Hier geniet je in alle rust van privacy en ontspanning. Met de natuur; het dorpsrandpark, de Fraeylemaborg en het Roegwold om de hoek!

BIJZONDERHEDEN
- Energielabel A – bijna gasloos (zeer lage lasten)
- 12 zonnepanelen (2021 – 4440 Wp)
- Zonneboiler – boilervat 200 l. (2021)
- CV-ketel Intergas HRE 36 (2021)
- Waterontharder (2021)
- Nieuwe radiatoren begane grond
- Volledig geïsoleerde garage (2024)
- Geïsoleerde Serre (2019)
- Jacobus-houtkachel
- Massief eiken vloer
- Grote zuidwest-tuin met sauna, buitendouche en overkapping
- Krachtstroom aanwezig
- Laag energieverbruik
- Eigen oprit, nette groene straat

KORTOM: een ruime, moderne en energiezuinige woning met veel comfort, sfeer en mogelijkheden! Van gezinswoning tot levensloopbestendig wonen!

Meer

Neem contact op

iQ Makelaars Midden-Groningen
Lougpadje 15
9628AD Siddeburen

T  0598 - 592 395
E  Midden-Groningen@iQMakelaars.nl

Specificaties

Bouw

  • Soort Woningen
  • Type Eengezinswoning
  • Bouwjaar 2005

Algemeen

  • Beschikbaarheid In overleg

Energie

  • Energielabel A
  • CV-ketel eigendom Ja
  • CV-ketel brandstof Gas
  • CV-ketel bouwjaar 2021

Indeling

  • Slaapkamers 4
  • Garage Ja

Afmetingen

  • Woonoppervlakte 143 m²
  • Perceeloppervlakte 416 m²
  • Woninginhoud 556 m³
Meer

Vraag bezichtiging aan

Wat is jouw huis waard?

Gratis rapport iQ Makelaars Leadtool

Contact

iQ Makelaars Midden-Groningen
Lougpadje 15
9628AD Siddeburen

E: midden-groningen@iqmakelaars.nl
T: 0598 - 592 395

0598 - 592 395

Volg ons

 

Onze beoordelingen

Onze klanten beoordelen ons met een 9,5 / 10. Elke klant met een unieke ervaring. Benieuwd naar de verhalen?

Bekijk alle beoordelingen