iQ Makelaars Feedbackcompany
9.5 10
252 reviews
iQ Makelaars Funda
9 10
 
Siddeburen, Damsterweg 32
 

Damsterweg 32 Siddeburen

€ 495.000,-
k.k.
  iQ Makelaars Siddeburen, Damsterweg In optie
€ 495.000,-
k.k.
Damsterweg 32 Siddeburen
  • TypeVrijstaand
  • Woonoppervlakte139 m²
  • Perceelgrootte4039 m²
  • Slaapkamers3
  • GarageJa
  • Aangeboden sinds01-11-2025
  • Beschikbaarheid In overleg
Vraag bezichtiging aan

Omschrijving

Vrijstaand wonen met ruimte, rust en mogelijkheden

Aan de Damsterweg 32 in Siddeburen staat deze charmante vrijstaande woning met een ruime garage met dubbele carport en een paardenstal met twee boxen. De woning staat op een royaal perceel van 4.070 m² en biedt daarmee volop ruimte voor buitenleven, hobbydieren of het houden van paarden. Met een woonoppervlakte van circa 130 m² combineert deze woning landelijk wonen met comfort en privacy.

Indeling

Via de achterzijde van de woning (de hoofdentree) kom je binnen in een ruime hal met aansluitingen voor wasmachine en droger en een praktische inbouwkast. Vanuit hier bereik je een halletje dat toegang geeft tot een slaapkamer met badkamer en toilet, die ook rechtstreeks bereikbaar is vanuit de woonkeuken.

De woonkeuken biedt plek voor een royale eettafel en vormt het hart van de woning. De keuken is circa 10 jaar oud en voorzien van inbouwapparatuur van ongeveer 2 jaar oud.

Vanuit de keuken kom je in de knusse woonkamer met balkenplafond en veel ramen, wat zorgt voor een warme, landelijke sfeer.

Via de wenteltrap in de keuken bereik je de overloop met toegang tot extra bergruimte. Aan beide zijden van de overloop bevind zich een ruime slaapkamers met dakkapel, wat zorgt voor extra licht en ruimte.

Buiten

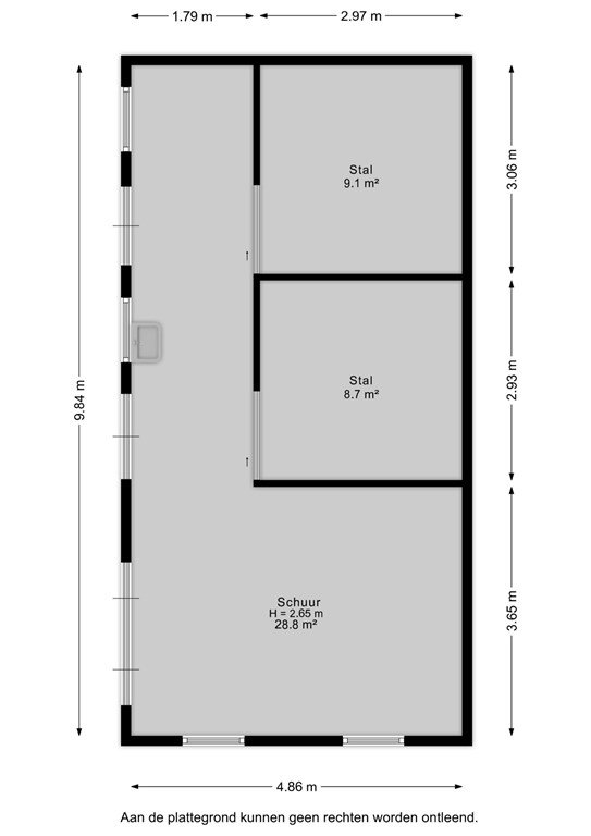
Daarnaast beschikt de woning over meerdere praktische bergingen. Op het erf vind je een garage met dubbele carport en een paardenstal met twee boxen. Er is een eigen oprit en ruime bestrating rondom de garage en paardenstal, wat zorgt voor veel praktische ruimte en parkeergelegenheid.

De voortuin is geheel omheind en de achtertuin deels, ideaal voor spelende kinderen of huisdieren. Het perceel van ruim 4.000 m² biedt volop mogelijkheden voor dierenliefhebbers, tuinliefhebbers of iedereen die houdt van rust, vrijheid en natuur.

De aanwezigheid van de royale bijgebouwen biedt bovendien volop kansen voor wie thuis wil werken of ondernemen. Of het nu gaat om een kantoor aan huis, een atelier of een hobby / praktijkruimte, deze woning combineert wonen en werken moeiteloos.

Energie en onderhoud

Het dak is circa 10 jaar geleden vernieuwd. Beneden zijn de kozijnen van hout, boven van onderhoudsarm kunststof.

De woning beschikt over 12 zonnepanelen (geplaatst in 2021) en een cv-installatie uit 2020. Verwarming vindt plaats middels centrale verwarming.
Het NCG-versterkingsplan loopt nog; de bijbehorende stukken zijn bij interesse ter inzage

Omgeving

Siddeburen is een levendig dorp in de gemeente Midden-Groningen, met winkels, basisscholen en sportvoorzieningen binnen handbereik. De ligging is gunstig ten opzichte van de uitvalswegen richting Appingedam, Delfzijl en Groningen.

Hier woon je landelijk, maar met alle voorzieningen in de buurt.

Nieuwsgierig geworden? Neem dan snel contact met ons op om deze bijzondere woonboerderij aan de Damsterweg 32 in Siddeburen van binnen te bekijken. Een unieke locatie met volop potentie! Grijp nu je kans!

Meer

Neem contact op

iQ Makelaars Midden-Groningen
Lougpadje 15
9628AD Siddeburen

T  0598 - 592 395
E  Midden-Groningen@iQMakelaars.nl

Specificaties

Bouw

  • Soort Woningen
  • Type Vrijstaand
  • Bouwjaar 1931

Algemeen

  • Beschikbaarheid In overleg

Energie

  • Energielabel G

Indeling

  • Slaapkamers 3
  • Garage Ja
  • Tuin Ja
  • Tuin ligging South_west

Afmetingen

  • Woonoppervlakte 139 m²
  • Perceeloppervlakte 4039 m²
  • Woninginhoud 437 m³
  • Tuin oppervlakte 4070 m²
Meer

Afbeeldingen

 
 
 
 
 
 
 
 
 
 
 
 
 
 
 
 
 
 
 
 
 
 
 
 
 
 
 
 
 
 
 

Vraag bezichtiging aan

Vergelijkbaar aanbod

Verkocht
Siddeburen
Oudeweg 63
   € 499.500,- k.k.
Details

Wat is jouw huis waard?

Gratis rapport iQ Makelaars Leadtool

Contact

iQ Makelaars Midden-Groningen
Lougpadje 15
9628AD Siddeburen

E: midden-groningen@iqmakelaars.nl
T: 0598 - 592 395

0598 - 592 395

Volg ons

 

Onze beoordelingen

Onze klanten beoordelen ons met een 9,5 / 10. Elke klant met een unieke ervaring. Benieuwd naar de verhalen?

Bekijk alle beoordelingen